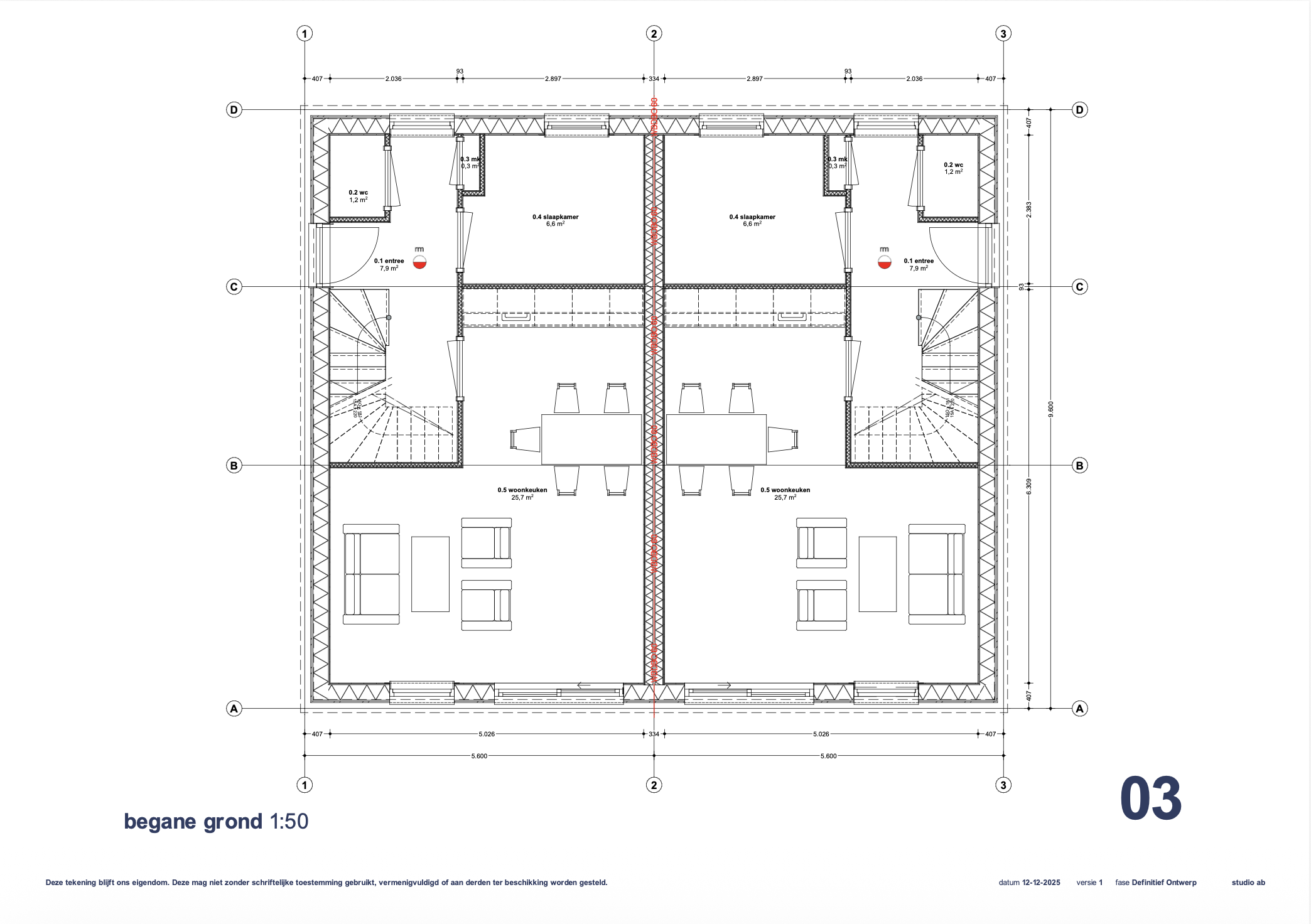
nieuwbouw | woonfunctie | projectontwikkeling | seriematig

Voor dit nieuwbouwproject herzag Studio AB. het vergunde ontwerp met duurzaamheid en energiezuinigheid als leidende uitgangspunten. Het resultaat is een ontwerp dat lage woonlasten voor de bewoner combineert met beheerste bouwkosten — zonder in te leveren op kwaliteit.

kenmerken

project zes woningen te Siddeburen

opdrachtgever zakelijk

status in voorbereiding

gebruiksfunctie woonfunctie

omvang ca 600 m²

Vorige
Vorige

Nieuwbouw woning te Blauwestad

Volgende
Volgende

Molkfabryk te Burgum